オフィスビル
令和8年4月工事完了予定!全面リニューアル物件です。
旧三井住友海上福井ビル(名称変更予定)
物件概要
| 所在地 | 福井市田原1丁目5-21 |
|---|---|
| 竣工 | 1985年3月 |
| 延床面積 | 1951.32㎡(590.27坪) |
| 構造 | 鉄筋コンクリート造陸屋根6階建 |
| 空調設備 | 個別空調 |
| 衛生設備 | 24時間換気・男女別トイレ |
| 防災設備 | 自動火災報知器 |
| セキュリティ | 24時間セキュリティー |
| 昇降設備 | エレベーター1基 |
| 駐車場 | 機械式駐車場あり(全30台) 16,500円(税込) |
| 備考 | エントランス開放時間(仮) 平日9:00~20:00 土日祝日 閉館 水道料金100円/坪(税別 ) |
| 竣工 | 1985年3月(築41年) |
| 規模 | 6階建 |
| 構造 | 鉄筋コンクリート造陸屋根 |
| 付属設備 | 男女別トイレ,共同流し台,エレベーター,0Aフロア,24時間セキュリティー,耐震構造(新耐震基準) |
賃貸条件
↓ 行をクリックすると、詳細が表示されます。
| タイプ | 階数 | 面積 | 賃貸料金坪単価 | 月額賃貸料金 | 共益費坪単価 | 月額共益費 | 月額賃料・共益費 | 保証金 | 入居可能日 |
|---|---|---|---|---|---|---|---|---|---|
| - | 1階 | 166.36㎡(50.32坪) | 7,000円 | 352,240円(税込:387,464円) | - | - | 352,240円(税込:387,464円) | 2,113,440円 | 2026年4月頃~ |
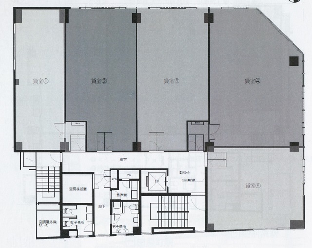
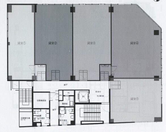
| ① | 2階 | 51.26㎡(15.5坪) | 6,500円 | 100,750円(税込:110,825円) | - | - | 100,750円(税込:110,825円) | 302,250円 | 2026年4月頃~ |
| ② | 2階 | 62.55㎡(18.92坪) | 6,500円 | 122,980円(税込:135,278円) | - | - | 122,980円(税込:135,278円) | 491,920円 | 2026年4月頃~ |
| ③ | 2階 | 63.02㎡(19.06坪) | 6,500円 | 123,890円(税込:136,279円) | - | - | 123,890円(税込:136,279円) | 371,670円 | 2026年4月頃~ |
| ④ | 2階 | 82.13㎡(24.84坪) | 6,500円 | 161,460円(税込:177,606円) | - | - | 161,460円(税込:177,606円) | 484,380円 | 2026年4月頃~ |
| ⑤ | 2階 | 51.72㎡(15.64坪) | 6,500円 | 101,660円(税込:111,826円) | - | - | 101,660円(税込:111,826円) | 304,980円 | 2026年4月頃~ |
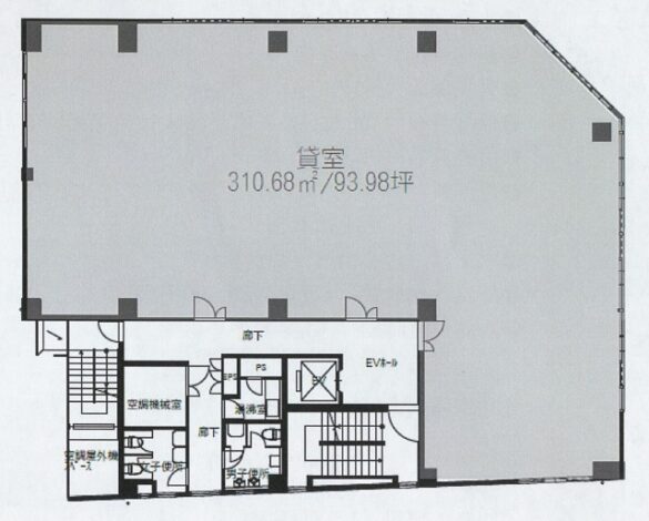
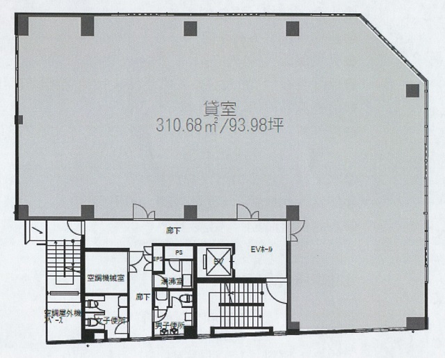
| - | 3階 | 310.68㎡(93.98坪) | 6,000円 | 563,880円(税込:620,268円) | - | - | 563,880円(税込:620,268円) | 3,383,280円 | 2026年4月頃~ |
| - | 4階 | 310.68㎡(93.98坪) | 6,000円 | 563,880円(税込:620,268円) | - | - | 563,880円(税込:620,268円) | 3,383,280円 | 2026年4月頃~ |
| - | 5階 | 310.68㎡(93.98坪) | 6,000円 | 563,880円(税込:620,268円) | - | - | 563,880円(税込:620,268円) | 3,383,280円 | 2026年4月頃~ |