福井の賃貸オフィス・貸し倉庫・貸店舗・オフィスビル不動産のトータルプランナー 三谷不動産の事業用テナント

掲載物件数:84
0776-23-2301
1階物件|オフィスビル|事務所
JR金沢駅から徒歩7分!北陸の営業拠点、保守拠点として最適!

サン金沢ビル

サン金沢ビル 外観

外観

サン金沢ビル 707号室

707号室

サン金沢ビル 707号室

707号室

サン金沢ビル 707号室

707号室

サン金沢ビル 707号室

707号室

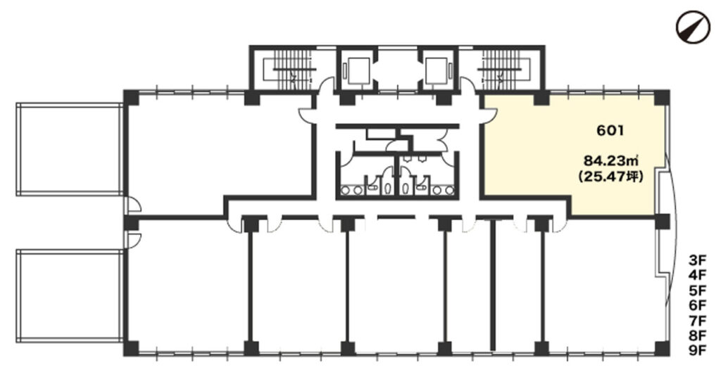
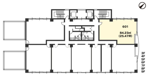
サン金沢ビル 601号室

601号室

サン金沢ビル 601号室

601号室

サン金沢ビル 101号室

101号室

24時間の全館セキュリティ。
タワー式パーキングから富山、福井方面へのアクセスは良好。
オフィスから地下駐車場は雪、雨、暑さの心配なく、商品、工具等が運び込み出来ます!

物件概要

所在地 金沢市駅西本町1丁目14番29号
規模 地下1階地上9階建
竣工 1990年11月
建築面積 719.68㎡(217.70坪)
延床面積 7175.02㎡(2,170.44坪)
天井高 2500mm
構造 鉄骨鉄筋コンクリート造
空調設備 個別空調
衛生設備 給湯室、洋式トイレ(ウォシュレット付)
防災設備 自動火災報知設備
セキュリティ 24時間セキュリティ
昇降設備 エレベーター2基
駐車場 タワー式68台
備考 外壁塗装・防水工事(2005年)

賃貸条件

↓ 行をクリックすると、詳細が表示されます。

タイプ 階数 面積 賃貸料金坪単価 月額賃貸料金 共益費坪単価 月額共益費 月額賃料・共益費 保証金 入居可能日
101 1階 201.69㎡(61.01坪) 9,000円 549,090円(税込:603,999円) 3,000円 183,030円(税込:201,333円) 732,120円(税込:805,332円) 6,589,080円 即日入居可能
601 6階 84.23㎡(25.47坪) 8,000円 203,760円(税込:224,136円) 3,000円 76,410円(税込:84,051円) 280,170円(税込:308,187円) 2,445,120円 即日入居可能

この物件のお問い合わせ

- -
-
↑入力されている場合はこのままで送信下さい。