福井の賃貸オフィス・貸し倉庫・貸店舗・オフィスビル不動産のトータルプランナー 三谷不動産の事業用テナント

掲載物件数:84
0776-23-2301
オフィスビル|事務所
福井の中心市街地、 好アクセスオフィス

三谷中央ビル

三谷中央ビル 外観

外観

三谷中央ビル リフレッシュルーム

リフレッシュルーム

三谷中央ビル 貸会議室

貸会議室

JR福井駅・県庁・市役所・デパートが集約するど真ん中。
常設貸会議室、入居者様専用レンタサイクル有り。
駐車場から雨に濡れずにお客様をお迎えします。
車でのお越しもスムースイン・スムースアウト。

物件概要

所在地 福井市中央3丁目1-5
規模 9階建
竣工 1999年7月
建築面積 789.17㎡(238.72坪)
延床面積 6637.67㎡(2,007.90坪)
天井高 2600mm
構造 鉄骨造
空調設備 個別空調
衛生設備 給湯室、洋式トイレ(ウォシュレット付)
防災設備 自動火災報知設備
セキュリティ 24時間セキュリティ
昇降設備 エレベーター2基
駐車場 タワー式68台
備考 2018.06 全館エアコン入替え(省エネ) 2018.08 建物外装リニューアル

賃貸条件

↓ 行をクリックすると、詳細が表示されます。

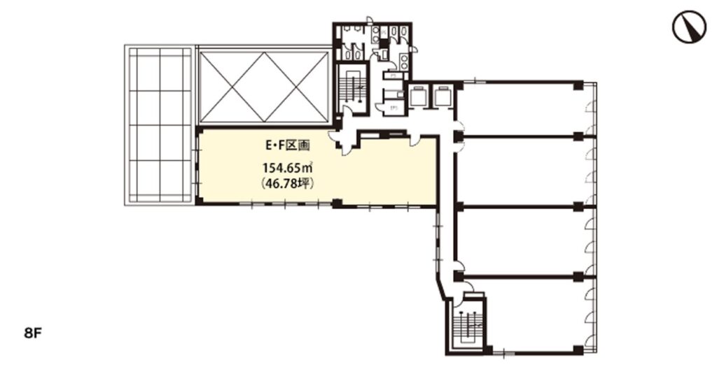
タイプ 階数 面積 賃貸料金坪単価 月額賃貸料金 共益費坪単価 月額共益費 月額賃料・共益費 保証金 入居可能日
8D1・2・3 8階 154.78㎡(46.82坪) 7,300円 341,786円(税込:375,965円) 3,200円 149,824円(税込:164,806円) 491,610円(税込:540,771円) 4,101,432円 2026年3月中旬
3E 3階 33.39㎡(10.1坪) 7,300円 73,730円(税込:81,103円) 3,200円 32,320円(税込:35,552円) 106,050円(税込:116,655円) 884,760円 2026年3月上旬

周辺環境

三谷中央ビル JR福井駅徒歩7分

JR福井駅徒歩7分

三谷中央ビル 西武福井店・紀伊国屋徒歩5分

西武福井店・紀伊国屋徒歩5分

三谷中央ビル 佐佳枝郵便局徒歩1分

佐佳枝郵便局徒歩1分

三谷中央ビル 福井県庁徒歩5分

福井県庁徒歩5分

三谷中央ビル 市役所徒歩5分

市役所徒歩5分

この物件のお問い合わせ

- -
-
↑入力されている場合はこのままで送信下さい。